
natural wood slats are used throughout, adding warmth and blending the house with the surrounding landscape

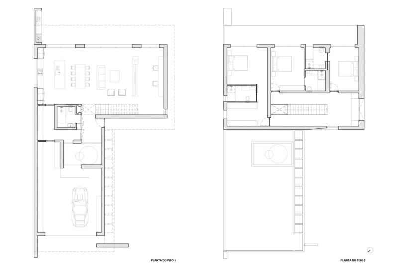
the ground floor houses social spaces, including an open-plan kitchen, living room, and office
KEEP UP WITH OUR DAILY AND WEEKLY NEWSLETTERS
founder aristides dallas discusses the studio's design philosophy, creative process, and what lies ahead for the firm.
ahead of the public opening on june 6th, the architect speaks with designboom about the themes of impermanence, tactility, and light that shape 'a capsule in time'.
in the alloa hills of india, studio sangath's weekend home dissolves into the landscape through terracotta tones and an open courtyard plan.
asti architetti led the refurbishment of the skyscraper that combines residential, corporate, cultural, and communal uses.














