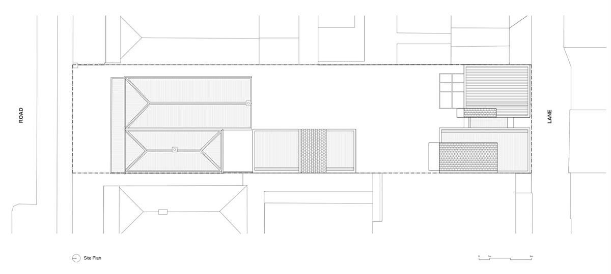
austin maynard architects completes its terracotta house in melbourne‘s bustling and bohemian neighborhood of fitzroy. the client sought a farm house with a large vegetable garden without leaving the city. beginning with an inner suburban cottage with a huge backyard in a community-spirited enclave, the team renovates the original house for the family of the client’s son, and constructs a new dwelling for her at the rear of the plot. between the two cottages is a garden and a shared pavilion. the house stands as a design-minded multi-generational home with its subtle combination of communal and private areas.

austin maynard architects' terracotta house reflects the spirit of a vegetable garden
images by derek swalwell

 

 

austin maynard architects creates a comminal-living family compound with the completion of its terracotta house. the team notes that the project is akin to a village square, with the owner and her son’s family living individually in homes within a single shared block. the team aims to maximize space, create a dialogue between the interiors and the garden, and embrace the street to celebrate the nearby footpaths.

austin maynard architects' terracotta house reflects the spirit of a vegetable garden

 

 

with its terracotta house, austin maynard respects and enhances the character of the original, street-facing dwelling. the timber-clad victorian cottage is celebrated with a thoughtful interior renovation and reorganization. the living area — kitchen, dining, and living — are moved from the rear of the house to the front so they are looking toward the street and sunny front garden. a new kitchen and bathroom are installed while partitions are removed to simplify the circulation. though the front garden and verandah had not significantly changed in form, these spaces changed in function. no longer purely ornamental, the area is now a productive, working and recreational space that connects to the life on this friendly, community-rich street. the two bedrooms and the bathroom are now located in the rear of the home, a quieter and more private location.

austin maynard architects' terracotta house reflects the spirit of a vegetable garden

 

 

belinda, owner terracotta house comments:I have always been interested in adjoined properties and shared gardens but it’s not always practical or affordable to have neighbouring houses. I came to austin maynard architects and together we found the right block of land and embarked on the plans. I loved their tower house project — the fact that it wasn’t built up but spread around, and it was beautiful. that mattered — I wanted my home to be beautiful. now I have a beautiful house, and the grandchildren love coming here, it’s like a little village for them. we’ve found a new way of achieving communal living.’

austin maynard architects' terracotta house reflects the spirit of a vegetable garden austin maynard architects' terracotta house reflects the spirit of a vegetable garden austin maynard architects' terracotta house reflects the spirit of a vegetable garden austin maynard architects' terracotta house reflects the spirit of a vegetable garden austin maynard architects' terracotta house reflects the spirit of a vegetable garden austin maynard architects' terracotta house reflects the spirit of a vegetable garden austin maynard architects' terracotta house reflects the spirit of a vegetable garden austin maynard architects' terracotta house reflects the spirit of a vegetable garden austin maynard architects' terracotta house reflects the spirit of a vegetable garden austin maynard architects' terracotta house reflects the spirit of a vegetable garden

 

 

1/7
austin-maynard-architects-terracotta-house-fitzroy-melbourne-australia-designboom-013
 
austin-maynard-architects-terracotta-house-fitzroy-melbourne-australia-designboom-014
 
austin-maynard-architects-terracotta-house-fitzroy-melbourne-australia-designboom-015
 
austin-maynard-architects-terracotta-house-fitzroy-melbourne-australia-designboom-016
 
austin-maynard-architects-terracotta-house-fitzroy-melbourne-australia-designboom-017
 
austin-maynard-architects-terracotta-house-fitzroy-melbourne-australia-designboom-018
 
austin-maynard-architects-terracotta-house-fitzroy-melbourne-australia-designboom-019
 

project info:

 

project title: terracotta house

architecture: austin maynard architects

location: fitzroy, melbourne, australia

completion: 2021

photography: derek swalwell